Building Information Modeling

Für uns ist das Arbeiten mit 3D-Modellen nicht neu, denn wir erstellen unsere Bauwerksmodelle schon seit 1997 grundsätzlich in 3D. Aus diesem Modell können wir direkt Mengen, Ansichten, Schnitte und Grundrisse ableiten. 3D-Bewehrungspläne sind bei uns Standard. 3D–Planungen bringen Planungssicherheit, denn alle Detailpunkte können frühzeitig direkt am Rechner auf ihre Machbarkeit hin überprüft werden.

BIM ist kein Programm, sondern vereinfacht gesagt, eine Planungsmethode zur Optimierung des Planungsprozesses während der Planungs- und Ausführungsphase.

Heute schon vereinfacht uns das Arbeiten nach der BIM–Methode den Abgleich der Planung mit dem Architekten und den Planern der Haustechnik. Es werden keine Pläne ausgetauscht, sondern wir stellen den Beteiligten unser 3D-Tragwerksmodell, das auf Grundlage der Architekturplanung erstellt wurde, als IFC Modell zur Verfügung. Ebenfalls erhalten wir von den Beteiligten deren IFC-Modell, mit dem wir nach dem Import einen Kollisionstest durchführen. So lässt sich sehr früh ein kollisionsfreies Modell erstellen.

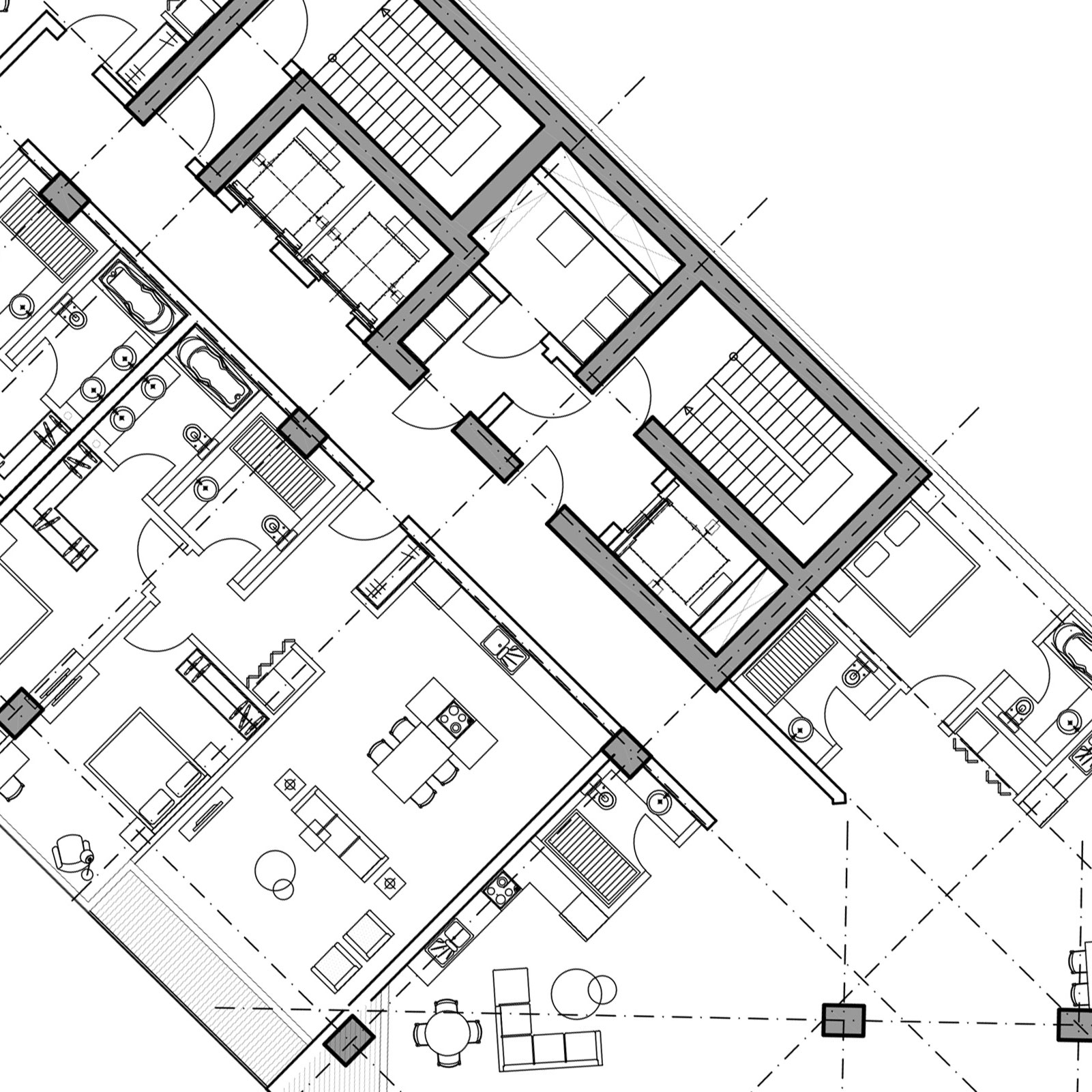
Aus 3D mach 2D ...

Während der Planungsphase ist der Austausch der 3D-Daten zeitsparend und hilft allen Beteiligten ihre Aufgaben in kürzerer Zeit, mit höherer Qualität durchzuführen. Die BIM – Methode stößt aber an der Schnittstelle zur Baustelle an ihre Grenze, denn ein noch so gut modelliertes 3D-Modell ist nicht alles.

Aus den darin enthaltenen Informationen müssen für die Baustelle praxistaugliche und fachgerechte Pläne abgeleitet werden. Wir legen daher sehr viel Wert darauf, dass wir aus dem 3D-Modell aussagekräftige 2D-Pläne generieren, in denen alle relevanten Daten für die Baustelle übersichtlich dargestellt werden.