Perstorp

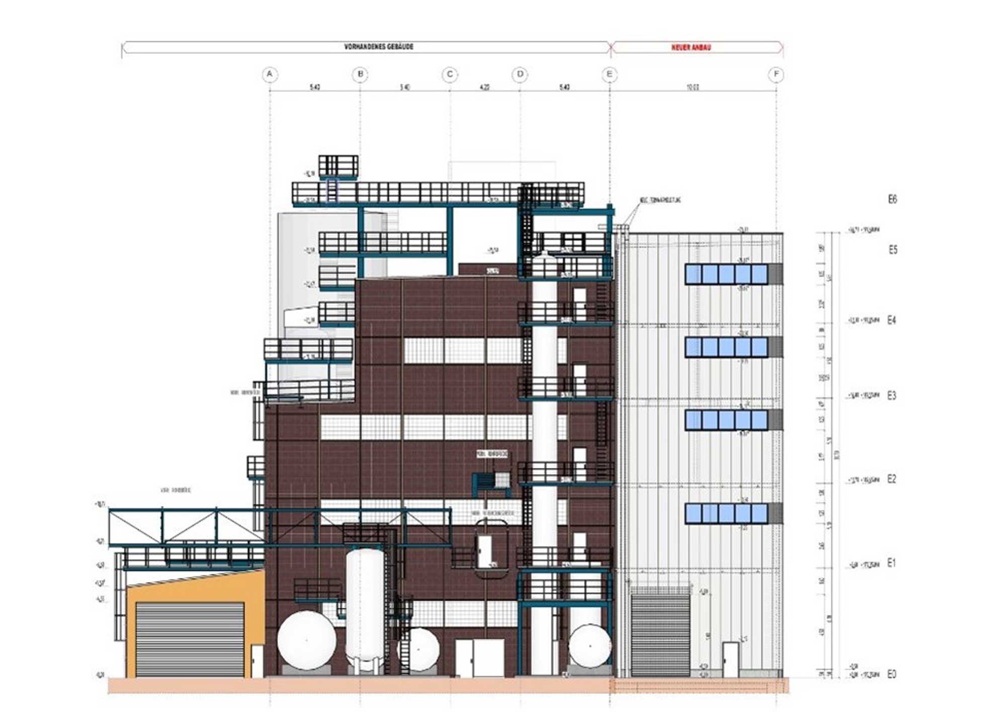
Das vorhandene Penta-B Gebäude wurde parallel zur Gebäudeachse E um einen Anbau zum Ausbau der Produktion erweitert.

Der Anbau ist ca. 24,00 m lang, ca. 10,00 m breit, ca. 26,75 m hoch und ist, wie das Bestandsgebäude, in 5 Ebenen (0,00 m, +6,60 m, +11,70 m, +16,80 m und +21,30 m) unterteilt. Für das Dach wurde eine Ausbaureserve zur Aufstellung von Lüftungsanlagen etc. berücksichtigt.

Der Anbau ist als Stahlkonstruktion erbaut, die einzelnen Ebenen mit Gitterrosten bzw. Tränenblechen ausgelegt. Das Dach wurde als Warmdach mit Stahltrapezprofilen ausgeführt, die Wandflächen wurden mit horizontalen Kassettenprofilen mit Mineralfaserdämmung und einer vertikalen Deckschicht aus Trapezprofilen verkleidet.

Die Aussteifung erfolgte in Querrichtung über Anbindung in den einzelnen Bühnenebenen an den Bestand, bzw. in Achse 1‘ über Vertikalverbände und Rahmen. In Längsrichtung erfolgte die Aussteifung über horizontale Verbände in den einzelnen Ebenen bzw. im Dachtragwerk und vertikale Verbände in den Längsachsen E und F. Auf einer der höher gelegenen Ebenen wurde die horizontale Aussteifung durch einen Tränenblechbelag übernommen.

Der Anbau ist auf Großbohrpfählen gegründet und auf den vorhandenen Einzelfundamenten in Achse E abgesetzt. Horizontale Lasten aus Wind wurden über die massive Betonwanne auf Ebene 0 gleichmäßig auf alle Bohrpfähle verteilt.